この記事で自作サーバーの完成をお伝えしたのですが、やっぱり反響が大きかったので、製作過程を数日にわたってアップしていきますねー。
早速、ちょっと暴露。
公開している自作サーバー、実は同じものは8台しか作ってませんw
ここを見ると、シャーシは12台分。。。残りの4台はどこへ消えたのでしょう。。。ねぇ?w
答えは「つづき」に^^
答えは次回以降に^^;
さて、この自作サーバーですが、当初は以下の通りのコンセプトで製作が始まりました。
括弧書きで、最初の自分の感想もw
・1Uハーフサイズが密集度に関していい感じだよね。
(1Uハーフの自作サーバー、多いみたいだしなー。)
・HDDのせられるだけ、全部2TBで。
(実生活じゃ全然導入してない。。。製品選定どうしよ^^;)
・Hadoopに使うから、RAIDはいらないよ。
(ぇ、大丈夫なの??? <= Hadoopをよく知らなかった)
・MapReduce用にコアは多い方がいいね、CPU。
(へ、へぇ、そういうものなんだ。。。汗)
・メモリとのバランスは調べないとわかんないから、とりあえずcoreあたり2GBくらいで。
(ふー、ふーん。。。滝汗)
・遠隔操作機能もついてるといいね、KVMのポート消費しないから。
(あぁ、これは同意。IPMI使ったことないけどどうにかなるっしょ)
こんな妄想を情シス他で語り合っていた訳です。
まぁでもね、とにもかくにも、まずは作ってみようじゃない?
早速、ちょっと暴露。
公開している自作サーバー、実は同じものは8台しか作ってませんw
ここを見ると、シャーシは12台分。。。残りの4台はどこへ消えたのでしょう。。。ねぇ?w
答えは次回以降に^^;
さて、この自作サーバーですが、当初は以下の通りのコンセプトで製作が始まりました。
括弧書きで、最初の自分の感想もw
・1Uハーフサイズが密集度に関していい感じだよね。
(1Uハーフの自作サーバー、多いみたいだしなー。)
・HDDのせられるだけ、全部2TBで。
(実生活じゃ全然導入してない。。。製品選定どうしよ^^;)
・Hadoopに使うから、RAIDはいらないよ。
(ぇ、大丈夫なの??? <= Hadoopをよく知らなかった)
・MapReduce用にコアは多い方がいいね、CPU。
(へ、へぇ、そういうものなんだ。。。汗)
・メモリとのバランスは調べないとわかんないから、とりあえずcoreあたり2GBくらいで。
(ふー、ふーん。。。滝汗)
・遠隔操作機能もついてるといいね、KVMのポート消費しないから。
(あぁ、これは同意。IPMI使ったことないけどどうにかなるっしょ)
こんな妄想を情シス他で語り合っていた訳です。
まぁでもね、とにもかくにも、まずは作ってみようじゃない?
+ + + + + + + + + +
というわけで、製作がスタートしたのですが、ここで問題が。
そもそも、どうやって作ればいいのさ!
自作PCはやったことあります。もう数十台。
パーツはわかります。基本的にPCと同じですから。
でも
でも
でも
ケースは作ったことないっちゅーねん!
ということで、ケースというか、シャーシの設計から始まるのでした。
んで、設計に使えるソフトって何か入ってたっけなーと自分のPCをごそごそと。
Microsoft Word ! (論外
Microsoft Excel ! (無理
Microsoft Powerpoint ! (細かい指定ができない><
なんかフリーのCADソフト落としてこようかなと思ったその時!
Microsoft VIsio !
。。。あんじゃんよw 図面書けるソフトがw
(Illustratorを申請しようかなと思っていたのは内緒)
ということで、慣れないVisioと格闘しながら、まずはコンセプトを固めていくのでした。
というか、先人の真似をね、ちょっとね、w
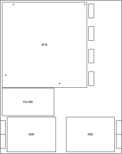
まずは、はてなのmarqsさん作、marqs60をベースにした案。

さらにHDDをつめるように考えた案。

などなど、いろいろと考えていたわけです。
こんな奇抜なのとか。

でもまぁ、しっくりこないんですよね。
なにかが違うんですよ。
ザクとはちg(ry
設計を書いてるうちにそのあたりははっきりしてくるかな、と、実際の設計に入っていくわけでした。
続く。あと5回ほどかな(ぇ
そもそも、どうやって作ればいいのさ!
自作PCはやったことあります。もう数十台。
パーツはわかります。基本的にPCと同じですから。
でも
でも
でも
ケースは作ったことないっちゅーねん!
ということで、ケースというか、シャーシの設計から始まるのでした。
んで、設計に使えるソフトって何か入ってたっけなーと自分のPCをごそごそと。
Microsoft Word ! (論外
Microsoft Excel ! (無理
Microsoft Powerpoint ! (細かい指定ができない><
なんかフリーのCADソフト落としてこようかなと思ったその時!
Microsoft VIsio !
。。。あんじゃんよw 図面書けるソフトがw
(Illustratorを申請しようかなと思っていたのは内緒)
ということで、慣れないVisioと格闘しながら、まずはコンセプトを固めていくのでした。
というか、先人の真似をね、ちょっとね、w
まずは、はてなのmarqsさん作、marqs60をベースにした案。
さらにHDDをつめるように考えた案。
などなど、いろいろと考えていたわけです。
こんな奇抜なのとか。
でもまぁ、しっくりこないんですよね。
なにかが違うんですよ。
設計を書いてるうちにそのあたりははっきりしてくるかな、と、実際の設計に入っていくわけでした。
続く。あと5回ほどかな(ぇ
この記事にコメントする
